• Условия оплаты
  • Доставка
  • Гарантия
  • Галерея
  • Статьи
  • Вопрос-ответ
  • Бренды
+7 8352 325-326 Заказать звонок
Котельное оборудование, отопительные и вентиляционные системы Котельное оборудование, отопительные и вентиляционные системы
  • Меню
  • Каталог
    • Котельное оборудование
    • Котлы настенные
    • Конденсационные котлы - бытовая серия
    • Конденсационные котлы - малой мощности
    • Конденсационные котлы
    • Котлы энергонезависимые
    • Котлы напольные
    • Котлы под установку горелки
    • Котлы на твердом топливе (дрова)
    • Паровые котлы
    • Вентиляторные горелки
    • Дымоходы комплектные
    • Системы управления и автоматики
    • Электрокотлы
    • Принадлежности для монтажа и обслуживания
    • Запчасти для котельного оборудования
    • ... Показать все
    • Водонагреватели
    • Водонагреватели для бытовой воды
    • Буферные емкости
    • Комбинированные бойлеры
    • Электрические водонагреватели
    • Принадлежности для водонагревателей
    • Канализация
    • Трубы канализационные внутренние
    • Фасонные части
    • Оборудование для подключения сантех. приборов
    • Устройства подключения
    • ТЕСЕdrainprofile - Душевые профили
    • Клапаны обратные канализационные
    • Трубы канализационные наружние
    • Шумоизоляция канализационных труб
    • Специфические фасонные части
    • ТЕСЕdrainline - дренажные каналы, панели и решетки
    • Фасонные части (наружняя канализация)
    • ТЕСЕdrainpoint S, HL - система точечных трапов
    • TECElineo - дренажные комплекты
    • TECEdrainboard-дренажная система для ванных комнат
    • Кровельная воронка
    • ... Показать все
    • Насосное оборудование
    • Насосы циркуляционные с мокрым ротором
    • Установки повышения давления бытовые
    • Насосы циркуляционные с сухим ротором
    • Установки повышения давления промышленные
    • Насосы скважинные
    • Насосы колодезные
    • Насосы дренажные
    • Насосы канализационные
    • Насосные установки пожаротушения
    • Установки для отвода конденсата
    • Электродвигатели для насосов
    • Принадлежности для насосов
    • ... Показать все
    • Системы быстрого монтажа котельных
    • Насосные модули
    • Гидравлические разделители
    • Коллекторы для насосных групп
    • Комплектующие для системы быстрого монтажа
    • Клапан предохранительный
    • Сервопривод
    • Группы безопасности
    • Электромеханические устройства безопасности
    • Клапаны автоподпитки
    • Теплообменники
    • Смесительные клапана
    • ... Показать все
    • Отопительные приборы
    • Радиаторы панельные
    • Радиаторы секционные
    • Радиаторы Kermi
    • Конвекторы внутрипольные
    • Конвекторы настенные/напольные и встраиваемые
    • Радиаторы трубчатые
    • Комплектующие для монтажа
    • ... Показать все
    • Арматура для радиаторов
    • Вентили
    • Комплектующие и адаптеры
    • Узлы нижнего подключения
    • УНП-Рапира
    • Комплект для подключения
    • Трубопроводы и фитинги
    • Трубопроводы PEX, PERT, MLP
    • Трубопроводы Cu, Zn, STNL
    • Трубопроводы PPR
    • Фитинги для PPR труб
    • Фитинги для медных труб
    • Фитинги оцинкованная и нержавеющая сталь
    • Декоративные элементы
    • Фитинги аксиальная опрессовка
    • PUSH-фитинги
    • Фитинги радиальная опрессовка
    • Концовки обжимные
    • Megapress SC-Contur
    • Компрессионные фитинги
    • ... Показать все
    • Резьбовые соединения и сгоны
    • Сгоны с накидной гайкой
    • Фитинги резьбовые
    • Коллектора и комплектующие
    • Системы напольного отопления
    • Коллекторные группы
    • Коллекторы наборные
    • Арматура для коллекторов
    • Крепления для коллекторов
    • Коллекторы для отопления
    • Коллекторные шкафы
    • Комплектующие для коллекторов
    • ... Показать все
    • Автоматика и управление
    • Термоголовки и электроприводы
    • Термостаты
    • Коммутационные колодки
    • Сервоприводы электротермические
    • Умный дом
    • Системы удаленного мониторинга
    • Датчики
    • Комплектующие и переходники
    • ... Показать все
    • Арматура запорная
    • Краны шаровые
    • Краны шаровые для газа
    • Краны шаровые для ХВС и ГВС
    • Краны для скрытой установки
    • Краны и вентили для бытовой техники
    • Краны спец. назначения
    • Клапаны обратные
    • Задвижка клиновая
    • Краны с электроприводом
    • Комплектующие для кранов
    • Арматура коммунальная
    • ... Показать все
    • Арматура регулирующая
    • Балансировочный вентиль
    • Комплектующие к арматуре
    • Клапаны понижения давления
    • Термостатические смесители
    • Регуляторы перепада давления
    • Клапаны двухходовые и трехходовые
    • ... Показать все
    • Удаление воздуха
    • Автоматические воздухоотводчики
    • Сепараторы комбинированные
    • Ручной воздушный клапан
    • Сепараторы воздуха
    • Фильтры и химводоподготовка воды
    • Фильтры грубой очистки
    • Фильтры механической очистки
    • Сепараторы шлама
    • Магнитные преобразователи
    • Системы очистки воды обратного осмоса
    • Комплексные системы водоподготовки
    • Умягчители воды полифосфатные
    • Умягчители воды ионнообменные
    • Системы УФ обеззараживания
    • Комплектующие для ионнообменных умягчителей
    • Фильтры картриджные - бытовые
    • Фильтры картриджные - магистральные
    • Картриджи для фильтров
    • Принадлежности для систем очистки
    • Запчасти для систем очистки воды
    • Комплектующие
    • ... Показать все
    • Контрольно-измерительные приборы
    • Счетчики
    • Термометры
    • Реле давления
    • Комплектующие
    • Манометры
    • Автоматика
    • Сигнализаторы загазованности
    • ... Показать все
    • Инсталляции - застенные модули
    • Инсталляции - застенные модули
    • Панели смыва
    • TECEspring
    • ТЕСЕprofil
    • Комплектующие
    • Расширительные баки
    • Расширительные баки для отопления
    • Расширительные баки для водоснабжения
    • Компенсаторы гидроударов
    • Комплектующие для расширительных баков
    • Воздушное отопление
    • Водяные тепловентиляторы
    • Газовые тепловентиляторы
    • Комплектующие
    • Тепловые завесы
    • Стабилизаторы напряжения и ИБП
    • Стабилизаторы бытовые
    • ИБП (источники бесперебойного питания)
    • Устройства защиты от нестабильной сети
    • Комплектующие
    • Плинтусная разводка
    • Комплектующие
    • Плинтусный профиль и фасонные элементы
    • Встраиваемые системы пылеуборки
    • Силовые блоки
    • Аксессуары к силовым блокам
    • Пневморозетки
    • Уборочные аксессуары
    • Инсталляционные материалы и оборудование
    • Интегрированный шланг
    • Универсальные аксессуары
    • Расходные материалы
    • Запчасти
    • ... Показать все
    • Дымоходные системы из нержавеющей стали
    • Одностенные системы дымоходов
    • Двустенные системы дымоходов
    • Комплектующие для дымоходных систем
    • Дымоходные системы из керамики
    • Стандартные комплекты
    • Верхние комплекты
    • Комплектующие для керамических дымоходных систем
    • Системы кондиционирования
    • Компрессорно-конденсационные блоки
    • Расходные материалы
    • Оборудование для систем естественной вентиляции
    • Вентблоки VENT индивидуальные вентканалы
    • Вентблоки CVENT для многоэтажных зданий
    • Оборудование для систем механической вентиляции
    • Бытовые системы
    • Промышленные системы
    • Вентиляционные агрегаты - установки для бассейнов
    • Воздухораспределители
    • Защита от протечек
    • Модули управления
    • Датчики
    • Комплектующие
    • Краны шаровые с электроприводом
    • Наборы
    • Системы очистки канализационных стоков
    • Жироуловители
    • Септики
    • Принадлежности
    • Теплоизоляция
    • Плиты и маты
    • Трубы
    • Периферическая изоляция
    • Рулоны
    • Комплектующие
    • Cухая стяжка
    • ... Показать все
    • Крепеж
    • Крепления для "теплого пола"
    • Хомуты для монтажа воздуховодов
    • Крепежи для стальных балок
    • Профильная система
    • Комплектующие для крепежа
    • Маркировка трубопроводов
    • Пластиковые опоры
    • Хомуты для медных труб
    • Хомуты сантехнические
    • Шпильки, дюбеля и т.п.
    • ... Показать все
    • Ревизионные люки
    • Ревизионные люки под плитку
    • Ревизионные люки напольные
    • Ревизионные люки под покраску
    • Альтернативные источники энергии
    • Солнечные коллектора
    • Сантехническое оборудование
    • Гибкие подводки
    • Вентили для подключения смесителя
    • Фаянс
    • Grohe
    • Прокладки
    • Инструменты
    • Приводы и клещи (губки)
    • Опресовщики
    • Трубогибы - пружины
    • Расходные материалы
    • Для монтажа вентиляционных блоков
    • Резаки
    • Запчасти для инструментов
    • Калибраторы
    • Прочее оборудование
    • ... Показать все
    • Расходные материалы
    • Лен сантехнический
    • Ленты фум и нити
    • Растворы для отопительных систем
    • Растворы для цементно-бетонных стяжек
    • Смазки для труб
    • Для монтажа медных труб
    • Герметики резьбовые
    • Пасты UNIPAK
    • ... Показать все
    • Распродажа
    • Распродажа
    • Услуги
    • Проектирование
    • Алмазное сверление
    • Монтажные работы
    • Сервисное обслуживание котельного оборудования
    • Аренда
  • Акции
  • Услуги
  • О компании
    О компании Новости Галерея Вакансии
  • Контакты
+7 8352 325-326 Заказать звонок
Каталог
-
Системы очистки канализационных стоков
Котельное оборудованиеВодонагревателиКанализацияНасосное оборудованиеСистемы быстрого монтажа котельныхОтопительные приборыАрматура для радиаторовТрубопроводы и фитингиРезьбовые соединения и сгоныКоллектора и комплектующиеАрматура запорнаяАвтоматика и управление Арматура регулирующаяУдаление воздухаФильтры и химводоподготовка водыКонтрольно-измерительные приборыИнсталляции - застенные модулиРасширительные бакиСтабилизаторы напряжения и ИБПВоздушное отоплениеПлинтусная разводкаВстраиваемые системы пылеуборкиДымоходные системы из нержавеющей сталиДымоходные системы из керамикиСистемы кондиционированияОборудование для систем естественной вентиляцииОборудование для систем механической вентиляцииЗащита от протечекСистемы очистки канализационных стоковТеплоизоляцияКрепежРевизионные люкиАльтернативные источники энергииСантехническое оборудованиеИнструментыРасходные материалыРаспродажаУслуги
-
Септики
ЖироуловителиПринадлежности

Септики

Фильтр:
Цена
4 288
134 366
264 444
394 522
524 600
Бренд
Способ отведения стоков
Производительность, м3/сутки
0.6
1.6
1.6
2.6
3
Кол-во пользователей
Пиковый сброс, л
120
278
435
593
750
Комплектующие
Выбрано 0 Показать
Выбрано 0 Показать
Каталог
  • Котельное оборудование
    • Котлы настенные
    • Конденсационные котлы - бытовая серия
    • Конденсационные котлы - малой мощности
    • Конденсационные котлы
    • Котлы энергонезависимые
    • Котлы напольные
    • Котлы под установку горелки
    • Котлы на твердом топливе (дрова)
    • Паровые котлы
    • Вентиляторные горелки
    • Дымоходы комплектные
    • Системы управления и автоматики
    • Электрокотлы
    • Принадлежности для монтажа и обслуживания
    • Запчасти для котельного оборудования
  • Водонагреватели
    • Водонагреватели для бытовой воды
    • Буферные емкости
    • Комбинированные бойлеры
    • Электрические водонагреватели
    • Принадлежности для водонагревателей
  • Канализация
    • Трубы канализационные внутренние
    • Фасонные части
    • Оборудование для подключения сантех. приборов
    • Устройства подключения
    • ТЕСЕdrainprofile - Душевые профили
    • Клапаны обратные канализационные
    • Трубы канализационные наружние
    • Шумоизоляция канализационных труб
    • Специфические фасонные части
    • ТЕСЕdrainline - дренажные каналы, панели и решетки
    • Фасонные части (наружняя канализация)
    • ТЕСЕdrainpoint S, HL - система точечных трапов
    • TECElineo - дренажные комплекты
    • TECEdrainboard-дренажная система для ванных комнат
    • Кровельная воронка
  • Насосное оборудование
    • Насосы циркуляционные с мокрым ротором
    • Установки повышения давления бытовые
    • Насосы циркуляционные с сухим ротором
    • Установки повышения давления промышленные
    • Насосы скважинные
    • Насосы колодезные
    • Насосы дренажные
    • Насосы канализационные
    • Насосные установки пожаротушения
    • Установки для отвода конденсата
    • Электродвигатели для насосов
    • Принадлежности для насосов
  • Системы быстрого монтажа котельных
    • Насосные модули
    • Гидравлические разделители
    • Коллекторы для насосных групп
    • Комплектующие для системы быстрого монтажа
    • Клапан предохранительный
    • Сервопривод
    • Группы безопасности
    • Электромеханические устройства безопасности
    • Клапаны автоподпитки
    • Теплообменники
    • Смесительные клапана
  • Отопительные приборы
    • Радиаторы панельные
    • Радиаторы секционные
    • Радиаторы Kermi
    • Конвекторы внутрипольные
    • Конвекторы настенные/напольные и встраиваемые
    • Радиаторы трубчатые
    • Комплектующие для монтажа
  • Арматура для радиаторов
    • Вентили
    • Комплектующие и адаптеры
    • Узлы нижнего подключения
    • УНП-Рапира
    • Комплект для подключения
  • Трубопроводы и фитинги
    • Трубопроводы PEX, PERT, MLP
    • Трубопроводы Cu, Zn, STNL
    • Трубопроводы PPR
    • Фитинги для PPR труб
    • Фитинги для медных труб
    • Фитинги оцинкованная и нержавеющая сталь
    • Декоративные элементы
    • Фитинги аксиальная опрессовка
    • PUSH-фитинги
    • Фитинги радиальная опрессовка
    • Концовки обжимные
    • Megapress SC-Contur
    • Компрессионные фитинги
  • Резьбовые соединения и сгоны
    • Сгоны с накидной гайкой
    • Фитинги резьбовые
  • Коллектора и комплектующие
    • Системы напольного отопления
    • Коллекторные группы
    • Коллекторы наборные
    • Арматура для коллекторов
    • Крепления для коллекторов
    • Коллекторы для отопления
    • Коллекторные шкафы
    • Комплектующие для коллекторов
  • Автоматика и управление
    • Термоголовки и электроприводы
    • Термостаты
    • Коммутационные колодки
    • Сервоприводы электротермические
    • Умный дом
    • Системы удаленного мониторинга
    • Датчики
    • Комплектующие и переходники
  • Арматура запорная
    • Краны шаровые
    • Краны шаровые для газа
    • Краны шаровые для ХВС и ГВС
    • Краны для скрытой установки
    • Краны и вентили для бытовой техники
    • Краны спец. назначения
    • Клапаны обратные
    • Задвижка клиновая
    • Краны с электроприводом
    • Комплектующие для кранов
    • Арматура коммунальная
  • Арматура регулирующая
    • Балансировочный вентиль
    • Комплектующие к арматуре
    • Клапаны понижения давления
    • Термостатические смесители
    • Регуляторы перепада давления
    • Клапаны двухходовые и трехходовые
  • Удаление воздуха
    • Автоматические воздухоотводчики
    • Сепараторы комбинированные
    • Ручной воздушный клапан
    • Сепараторы воздуха
  • Фильтры и химводоподготовка воды
    • Фильтры грубой очистки
    • Фильтры механической очистки
    • Сепараторы шлама
    • Магнитные преобразователи
    • Системы очистки воды обратного осмоса
    • Комплексные системы водоподготовки
    • Умягчители воды полифосфатные
    • Умягчители воды ионнообменные
    • Системы УФ обеззараживания
    • Комплектующие для ионнообменных умягчителей
    • Фильтры картриджные - бытовые
    • Фильтры картриджные - магистральные
    • Картриджи для фильтров
    • Принадлежности для систем очистки
    • Запчасти для систем очистки воды
    • Комплектующие
  • Контрольно-измерительные приборы
    • Счетчики
    • Термометры
    • Реле давления
    • Комплектующие
    • Манометры
    • Автоматика
    • Сигнализаторы загазованности
  • Инсталляции - застенные модули
    • Инсталляции - застенные модули
    • Панели смыва
    • TECEspring
    • ТЕСЕprofil
    • Комплектующие
  • Расширительные баки
    • Расширительные баки для отопления
    • Расширительные баки для водоснабжения
    • Компенсаторы гидроударов
    • Комплектующие для расширительных баков
  • Воздушное отопление
    • Водяные тепловентиляторы
    • Газовые тепловентиляторы
    • Комплектующие
    • Тепловые завесы
  • Стабилизаторы напряжения и ИБП
    • Стабилизаторы бытовые
    • ИБП (источники бесперебойного питания)
    • Устройства защиты от нестабильной сети
    • Комплектующие
  • Плинтусная разводка
    • Комплектующие
    • Плинтусный профиль и фасонные элементы
  • Встраиваемые системы пылеуборки
    • Силовые блоки
    • Аксессуары к силовым блокам
    • Пневморозетки
    • Уборочные аксессуары
    • Инсталляционные материалы и оборудование
    • Интегрированный шланг
    • Универсальные аксессуары
    • Расходные материалы
    • Запчасти
  • Дымоходные системы из нержавеющей стали
    • Одностенные системы дымоходов
    • Двустенные системы дымоходов
    • Комплектующие для дымоходных систем
  • Дымоходные системы из керамики
    • Стандартные комплекты
    • Верхние комплекты
    • Комплектующие для керамических дымоходных систем
  • Системы кондиционирования
    • Компрессорно-конденсационные блоки
    • Расходные материалы
  • Оборудование для систем естественной вентиляции
    • Вентблоки VENT индивидуальные вентканалы
    • Вентблоки CVENT для многоэтажных зданий
  • Оборудование для систем механической вентиляции
    • Бытовые системы
    • Промышленные системы
    • Вентиляционные агрегаты - установки для бассейнов
    • Воздухораспределители
  • Защита от протечек
    • Модули управления
    • Датчики
    • Комплектующие
    • Краны шаровые с электроприводом
    • Наборы
  • Системы очистки канализационных стоков
    • Жироуловители
    • Септики
    • Принадлежности
  • Теплоизоляция
    • Плиты и маты
    • Трубы
    • Периферическая изоляция
    • Рулоны
    • Комплектующие
    • Cухая стяжка
  • Крепеж
    • Крепления для "теплого пола"
    • Хомуты для монтажа воздуховодов
    • Крепежи для стальных балок
    • Профильная система
    • Комплектующие для крепежа
    • Маркировка трубопроводов
    • Пластиковые опоры
    • Хомуты для медных труб
    • Хомуты сантехнические
    • Шпильки, дюбеля и т.п.
  • Ревизионные люки
    • Ревизионные люки под плитку
    • Ревизионные люки напольные
    • Ревизионные люки под покраску
  • Альтернативные источники энергии
    • Солнечные коллектора
  • Сантехническое оборудование
    • Гибкие подводки
    • Вентили для подключения смесителя
    • Фаянс
    • Grohe
    • Прокладки
  • Инструменты
    • Приводы и клещи (губки)
    • Опресовщики
    • Трубогибы - пружины
    • Расходные материалы
    • Для монтажа вентиляционных блоков
    • Резаки
    • Запчасти для инструментов
    • Калибраторы
    • Прочее оборудование
  • Расходные материалы
    • Лен сантехнический
    • Ленты фум и нити
    • Растворы для отопительных систем
    • Растворы для цементно-бетонных стяжек
    • Смазки для труб
    • Для монтажа медных труб
    • Герметики резьбовые
    • Пасты UNIPAK
  • Распродажа
    • Распродажа
  • Услуги
    • Проектирование
    • Алмазное сверление
    • Монтажные работы
    • Сервисное обслуживание котельного оборудования
    • Аренда
Фильтр
По популярности По алфавиту По цене По наличию
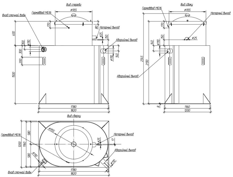
Система очистки сточных вод EVOSTOK BIO 5 (до 5 чел, самотечная система)?>
Система очистки сточных вод EVOSTOK BIO 5  (до 5 чел, самотечная система)
Быстрый просмотр
Система очистки сточных вод EVOSTOK BIO 5 (до 5 чел, самотечная система)
Артикул: BIO5
Под заказ (уточните срок поставки)
Система очистки сточных вод EVOSTOK BIO 5  (до 5 чел, самотечная система)
85 331 руб./шт
- +
В корзинуВ корзине
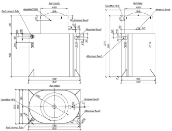
Система очистки сточных вод EVOSTOK BIO 5+ (до 5 чел, принудительный выброс)?>
Система очистки сточных вод EVOSTOK BIO 5+ (до 5 чел, принудительный выброс)
Быстрый просмотр
Система очистки сточных вод EVOSTOK BIO 5+ (до 5 чел, принудительный выброс)
Артикул: BIO5+
Под заказ (уточните срок поставки)
Система очистки сточных вод EVOSTOK BIO 5+ (до 5 чел, принудительный выброс)
91 656 руб./шт
- +
В корзинуВ корзине
Система очистки сточных вод EVOSTOK BIO 7 (до 7 чел, самотечная система)?>
Система очистки сточных вод EVOSTOK BIO 7 (до 7 чел, самотечная система)
Быстрый просмотр
Система очистки сточных вод EVOSTOK BIO 7 (до 7 чел, самотечная система)
Артикул: BIO7
Под заказ (уточните срок поставки)
Система очистки сточных вод EVOSTOK BIO 7 (до 7 чел, самотечная система)
110 416 руб./шт
- +
В корзинуВ корзине
Система очистки сточных вод EVOSTOK BIO 7+ (до 7 чел, принудительный выброс)?>
Система очистки сточных вод EVOSTOK BIO 7+ (до 7 чел, принудительный выброс)
Быстрый просмотр
Система очистки сточных вод EVOSTOK BIO 7+ (до 7 чел, принудительный выброс)
Артикул: BIO7+
Под заказ (уточните срок поставки)
Система очистки сточных вод EVOSTOK BIO 7+ (до 7 чел, принудительный выброс)
116 848 руб./шт
- +
В корзинуВ корзине
Система очистки сточных вод EVOSTOK BIO 10 (до 10 чел, самотечная система)?>
Система очистки сточных вод EVOSTOK BIO 10 (до 10 чел, самотечная система)
Быстрый просмотр
Система очистки сточных вод EVOSTOK BIO 10 (до 10 чел, самотечная система)
Артикул: BIO10
Под заказ (уточните срок поставки)
Система очистки сточных вод EVOSTOK BIO 10 (до 10 чел, самотечная система)
152 224 руб./шт
- +
В корзинуВ корзине
Система очистки сточных вод EVOSTOK BIO 10+ (до 10 чел, принудительный выброс)?>
Система очистки сточных вод EVOSTOK BIO 10+ (до 10 чел, принудительный выброс)
Быстрый просмотр
Система очистки сточных вод EVOSTOK BIO 10+ (до 10 чел, принудительный выброс)
Артикул: BIO10+
Под заказ (уточните срок поставки)
Система очистки сточных вод EVOSTOK BIO 10+ (до 10 чел, принудительный выброс)
159 728 руб./шт
- +
В корзинуВ корзине
Система очистки сточных вод EVOSTOK SUMP2 (до 5 чел, 2 куб.м, самотечная система)?>
Система очистки сточных вод EVOSTOK SUMP2 (до 5 чел, 2 куб.м,  самотечная система)
Быстрый просмотр
Система очистки сточных вод EVOSTOK SUMP2 (до 5 чел, 2 куб.м, самотечная система)
Артикул: SUMP2
Под заказ (уточните срок поставки)
Система очистки сточных вод EVOSTOK SUMP2 (до 5 чел, 2 куб.м,  самотечная система)
70 752 руб./шт
- +
В корзинуВ корзине
Система очистки сточных вод EVOSTOK SUMP2 (до 10 чел, 4 куб.м, самотечная система)?>
Система очистки сточных вод EVOSTOK SUMP2 (до 10 чел, 4 куб.м, самотечная система)
Быстрый просмотр
Система очистки сточных вод EVOSTOK SUMP2 (до 10 чел, 4 куб.м, самотечная система)
Артикул: SUMP4
Под заказ (уточните срок поставки)
Система очистки сточных вод EVOSTOK SUMP2 (до 10 чел, 4 куб.м, самотечная система)
141 504 руб./шт
- +
В корзинуВ корзине
Насос бытовой SDP 5000 для систем очистки сточных вод EVOSTOK BIO+?>
Насос бытовой SDP 5000 для систем очистки сточных вод EVOSTOK BIO+
Быстрый просмотр
Насос бытовой SDP 5000 для систем очистки сточных вод EVOSTOK BIO+
Артикул: SDP5000
Под заказ (уточните срок поставки)
Насос бытовой SDP 5000 для систем очистки сточных вод EVOSTOK BIO+
6 322 руб./шт
- +
В корзинуВ корзине
Сигнализатор уровня воды EVOSTOK Alarm Set LC?>
Сигнализатор уровня воды EVOSTOK Alarm Set LC
Быстрый просмотр
Сигнализатор уровня воды EVOSTOK Alarm Set LC
Артикул: ASLC3
Под заказ (уточните срок поставки)
Сигнализатор уровня воды EVOSTOK Alarm Set LC
15 008 руб./шт
- +
В корзинуВ корзине
Сигнализатор уровня жира EVOSTOK Alarm Set LC?>
Сигнализатор уровня жира EVOSTOK Alarm Set LC
Быстрый просмотр
Сигнализатор уровня жира EVOSTOK Alarm Set LC
Артикул: ASLC2
Под заказ (уточните срок поставки)
Сигнализатор уровня жира EVOSTOK Alarm Set LC
17 152 руб./шт
- +
В корзинуВ корзине
Сигнализатор уровня песка EVOSTOK Alarm Set LC?>
Сигнализатор уровня песка EVOSTOK Alarm Set LC
Быстрый просмотр
Сигнализатор уровня песка EVOSTOK Alarm Set LC
Артикул: ASLC1
Под заказ (уточните срок поставки)
Сигнализатор уровня песка EVOSTOK Alarm Set LC
32 160 руб./шт
- +
В корзинуВ корзине
Станция глубокой биологической очистки Alta BIO 10 (до 10 чел, самотечная система)?>
Станция глубокой биологической очистки Alta BIO 10 (до 10 чел, самотечная система)
Быстрый просмотр
Станция глубокой биологической очистки Alta BIO 10 (до 10 чел, самотечная система)
Артикул: Alta BIO 10
Под заказ (уточните срок поставки)
Станция глубокой биологической очистки Alta BIO 10 (до 10 чел, самотечная система)
155 000 руб./шт
- +
В корзинуВ корзине
Станция глубокой биологической очистки Alta BIO 10 UV+ (до 10 чел, принудительный выброс)?>
Станция глубокой биологической очистки Alta BIO 10 UV+ (до 10 чел, принудительный выброс)
Быстрый просмотр
Станция глубокой биологической очистки Alta BIO 10 UV+ (до 10 чел, принудительный выброс)
Артикул: Alta BIO 10 UV+
Под заказ (уточните срок поставки)
Станция глубокой биологической очистки Alta BIO 10 UV+ (до 10 чел, принудительный выброс)
524 600 руб./шт
- +
В корзинуВ корзине
Станция глубокой биологической очистки Alta BIO 10+ (до 10 чел, принудительный выброс)?>
Станция глубокой биологической очистки Alta BIO 10+ (до 10 чел, принудительный выброс)
Быстрый просмотр
Станция глубокой биологической очистки Alta BIO 10+ (до 10 чел, принудительный выброс)
Артикул: Alta BIO 10+
Под заказ (уточните срок поставки)
Станция глубокой биологической очистки Alta BIO 10+ (до 10 чел, принудительный выброс)
174 500 руб./шт
- +
В корзинуВ корзине
Станция глубокой биологической очистки Alta BIO 15 (до 15 чел, самотечная система)?>
Станция глубокой биологической очистки Alta BIO 15 (до 15 чел, самотечная система)
Быстрый просмотр
Станция глубокой биологической очистки Alta BIO 15 (до 15 чел, самотечная система)
Артикул: Alta BIO 15
Под заказ (уточните срок поставки)
Станция глубокой биологической очистки Alta BIO 15 (до 15 чел, самотечная система)
199 000 руб./шт
- +
В корзинуВ корзине
Станция глубокой биологической очистки Alta BIO 15+ (до 15 чел, принудительный выброс)?>
Станция глубокой биологической очистки Alta BIO 15+ (до 15 чел, принудительный выброс)
Быстрый просмотр
Станция глубокой биологической очистки Alta BIO 15+ (до 15 чел, принудительный выброс)
Артикул: Alta BIO 15+
Под заказ (уточните срок поставки)
Станция глубокой биологической очистки Alta BIO 15+ (до 15 чел, принудительный выброс)
230 000 руб./шт
- +
В корзинуВ корзине
Станция глубокой биологической очистки Alta BIO 3 (до 3 чел, самотечная система)?>
Станция глубокой биологической очистки Alta BIO 3 (до 3 чел, самотечная система)
Быстрый просмотр
Станция глубокой биологической очистки Alta BIO 3 (до 3 чел, самотечная система)
Артикул: Alta BIO 3
Под заказ (уточните срок поставки)
Станция глубокой биологической очистки Alta BIO 3 (до 3 чел, самотечная система)
78 500 руб./шт
- +
В корзинуВ корзине
Станция глубокой биологической очистки Alta BIO 3+ (до 3 чел, принудительный выброс)?>
Станция глубокой биологической очистки Alta BIO 3+ (до 3 чел, принудительный выброс)
Быстрый просмотр
Станция глубокой биологической очистки Alta BIO 3+ (до 3 чел, принудительный выброс)
Артикул: Alta BIO 3+
Под заказ (уточните срок поставки)
Станция глубокой биологической очистки Alta BIO 3+ (до 3 чел, принудительный выброс)
107 500 руб./шт
- +
В корзинуВ корзине
Станция глубокой биологической очистки Alta BIO 5 (до 5 чел, самотечная система)?>
Станция глубокой биологической очистки Alta BIO 5 (до 5 чел, самотечная система)
Быстрый просмотр
Станция глубокой биологической очистки Alta BIO 5 (до 5 чел, самотечная система)
Артикул: Alta BIO 5
Под заказ (уточните срок поставки)
Станция глубокой биологической очистки Alta BIO 5 (до 5 чел, самотечная система)
106 500 руб./шт
- +
В корзинуВ корзине
Показать еще
1 2 3
Все
Надежные септики для загородных домов. Септики укомплектованы всем необходимым и готовы к установке. Специальные условия для системы очистки стоков в коттеджных поселках.
Подписывайтесь
на новости и акции
+7 8352 325-326 Заказать звонок
2016 - 2026 © mail@hvac-expert.ru
Разработка и поддержка сайта: myadm.ru
Webmoney
Компания
Информация
Помощь
  • О компании
  • Новости
  • Галерея
  • Вакансии
  • Помощь
  • Условия оплаты
  • Условия доставки
  • Гарантия на товар
  • Статьи
  • Вопрос-ответ
  • Бренды
TELEGRAM WHATSAPP Facebook Instagram